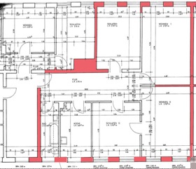
4 Zimmer-Wohnung 1. OG
4 Zimmer 1. OG
|
zurück